RÄUMEWOHNZIMMER | OFFENE KÜCHE MIT ESSBEREICH2 SCHLAFZIMMER | DUSCHBAD TERRASSE | KLEINER GARTEN
AUSSTATTUNG
Couch
Spülmaschine | Kochfeld | Kühlschrank
Backofen (nur Wohnung Süd) | Toaster
Wasserkocher | Espressomaker
Geschirr & Besteck | Geschirrhandtücher
1* 160er Doppelbetten
2* 80er Einzelbett ausziehbar zu 160er
WLAN | Spielesammlung
Dusche
Aussensitzplatz | Grill
Ferienhaus an der Ostsee in Mecklenburg
BESCHREIBUNG
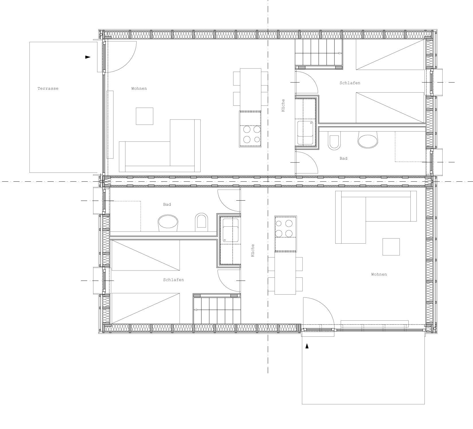
Unser Häuschen beherbergt zwei Wohnungen von je ca. 55qm. Dazu gehört ein kleiner Garten, der aber mit Terrasse und feiner Bepflanzung seinen Charme hat und jeder Wohnung seinen eigenen Bereich gibt. Bei unserem Haus handelt es sich um einen Holzbau, der von uns selber entworfen und gebaut wurde. Dabei haben wir sehr auf eine ökologische Bauweise inkl. Materialien geachtet.
Unser haus m ist ein freistehendes modernes Holzhaus. Es folgt in seiner Form
mit den geneigten Dächern dem regionalen Typus. Das besondere liegt darin, dass
sich einerseits jedes Haus nach Aussen über die Richtung der Dachneigung als
selbstständig artikuliert und andererseits ein Gesamtkörper mittels Symmetrie
und einheitlichem Fassadenmaterial geschaffen wurde. Die äussere Form folgt
dabei den inneren räumlichen Notwendigkeiten und versucht dabei so einfach wie
möglich zu sein.
Innen strukturiert der lichtdurchflutete Wohnraum die einzelnen Wohnungen. Dabei
ergibt sich aus dem Grundriss der Unterschied, dass eine Wohnung Ost/West ausgerichtet
ist und die andere West/Süd.
Der Wohnraum verbindet sich über eine grosse Verglasung mit dem Aussenraum und
der Terrasse. Die offene Küche bildet den räumlichen Übergang zu den jeweils rückwertig liegenden „Zellen“. Hier sind in einem reduzierten Charakter die zwei
Schlafzimmer und das Duschbad angeordnet. Wobei das Elternschlafzimmer verbunden
über eine schmale Treppe im Obergeschoss liegt. Der Einschnitt mit der Treppe
ermöglicht zudem die räumliche Erfahrbarkeit der gesamten äusseren Form.
Haus m ist ideal mit 4 Personen ganzjährig nutzbar. Ein Aufbetten mit Babybett ist vorgesehen.
Das Grundstück ist klein, bietet aber durch die Gartengestaltung und die
unterschiedlichen Ausrichtungen der Wohnungen sehr viel Ruhe.
NÜTZLICHES
Haus Miro liegt am Ortsrand vom Ostseebad Rerik, einer kleinen Stadt mit heute ca. 1200 Einwohnern. Das Haus steht frei auf einem 400 qm großen Grundstück mit einem kleinen Garten mit Sträuchern, Stauden, Obstbäumen und einer alten (von uns als Kinder gepflanzten) Birke.
Rerik befindet sich mitten im Landkreis Rostock in Mecklenburg. Der Ort ist geprägt von der Ostsee und dem Salzhaff. Wunderschön!!! Hier kann man Tage | Wochen | Monate | ... verbringen.
Der naturbelassene Sandstrand mit der Steilküste ist in wenigen Minuten fußläufig
erreichbar. Etwas weiter weg, ca. 20min Fussweg, befindet sich der Sandstrand
von Rerik.
Der Stadtkern mit zahlreichen Einkaufsmöglichkeiten und Restaurants ist ebenfalls
fußläufig erreichbar. Mit dem Rad sind in Tagestouren z.B. Ostseebad Kühlungsborn
und Heiligendamm über wunderschöne Radwege an der Steilküste zu erreichen.
Das Ostseebad Rerik liegt direkt an der Ostsee und bietet zusätzlich das Salzhaff.
Dieses wird gebildet durch die vorgelagerte Halbinsel Wustrow.
Rerik ist ein kleines Städtchen mit eher ruhigem Familientourismus und steht damit
in einem Kontrast zum überfüllten Ostseebad Kühlungsborn.
Selbiges ist genauso wie das Ostseebad Heiligendamm per Rad über wunderschöne
Radwege entlang der Steilküste gut zu erreichen. Ein wenig weiter entfernt liegen
die Städte Rostock mit seinem Stadtteil Warnemünde und die Hansestadt Wismar.
Gerade der Landweg über Pepelow nach Wismar ist per Rad (ca. 40km) wie auch
per PKW ein Erlebnis. Hier findet man wunderschöne Aussichten auf das Haff und
alte Dorfstrukturen.
Auf dem Weg nach Kühlungsborn ist sicherlich Kägsdorf und der Rieden in Meschendorf
erlebenswert.
In der unmittelbaren Umgebung befinden sich u.a. Großsteingräber und der Leuchtturm
in Bastorf. In organisierten Touren kann man auch die Gartenstadtsiedlung auf der
Halbinsel Wustrow besichtigen.
HAUSORDNUNG
Wir bitten darum,
1.dass mit der Ferienwohnung incl. Freiraum und den darin befindlichen Möbeln
und Gegenständen achtsam umgegangen wird.
2.dass in den Räumen der Ferienwohnung nicht geraucht wird und Haustiere nicht
gestattet sind.
3.dass insgesamt vier Personen die maximale Belegungszahl ist.
Eine höhere Belegung bedarf der Zustimmung.
4.dass am Anreisetag ab 16 Uhr eingecheckt und am Abreisetag bis 11 Uhr ausgecheckt wird. Gern können andere Zeiten, wenn möglich, vereinbart werden.
5.Bitte trennen Sie den Müll. Behälter dafür stehen bereit.
GRUNDLAGEN DER BUCHUNG
Es wird gemeinsam vereinbart,
1.dass 20% des Mietbetrags bei verbindlicher Buchung und der Restbetrag 6 Wochen
vor Reiseantritt auf das Vermieterkonto überwiesen werden.
2.dass im Falle des Rücktritts von der Buchung/Mietung Stornogebühren für den
Mieter anfallen
(ab vier Wochen vor Mietbeginn 10%, ab 14 Tage vor Mietbeginn
50%, ab dem 13. Tag vor Mietbeginn 80%)
Eine Reiserücktrittsversicherung ist zu
empfehlen
3.dass Sie stets bei Abwesenheit von der Ferienwohnung diese mit dem Schlüssel
verriegeln und auch nach dem Auschecken die Tür abschließen.
Die Mietangaben und Preise pro Nacht beziehen sich auf die Anmietung einer der
Ferienwohnungen (mit in der Regel bis zu vier Personen) und stellen keine pro
Person-Abgabe dar. In den Mietangaben sind Nebenkosten, d.h. Warmwasser, Strom,
Müll inklusive. Die Mietangaben werden ausschließlich durch die Endreinigungspauschale pro Anmietung ergänzt. Bettwäsche und Handtücher sind mitzubringen. Eine Kaution fällt nicht an. Sollte es zu unvorhergesehenen Vorfällen vor Ort
kommen (Stromausfall, Wasserschaden, o.Ä.), rufen Sie uns bitte unter der angegebenen Nummer an! Sollte es zu „Fällen von höherer Gewalt“ kommen, wie etwa unbegehbare zugeschneite Zufahrtsstraßen o.Ä., die es Ihnen unmöglich machen, die Mietung in
Anspruch zu nehmen, fallen beim Rücktritt von der Mietvereinbarung keine Stornogebühren an.














